





Cellini by Poinciana Homes
Stunning 2 story new construction custom home, with side entry garage, located in the prestigious area of Coral Gables. This home offers luxurious open living spaces enhanced by high volume ceilings.
Its unique architecture features floor to ceiling glass doors that unite the outdoors and make this home perfect for entertaining. The exquisite eat in kitchen comes equipped with top of the line appliances and wine cooler. Not to mention an incredible summer kitchen with ice maker and refrigerator, that creates a perfect setting for enjoying pool parties.
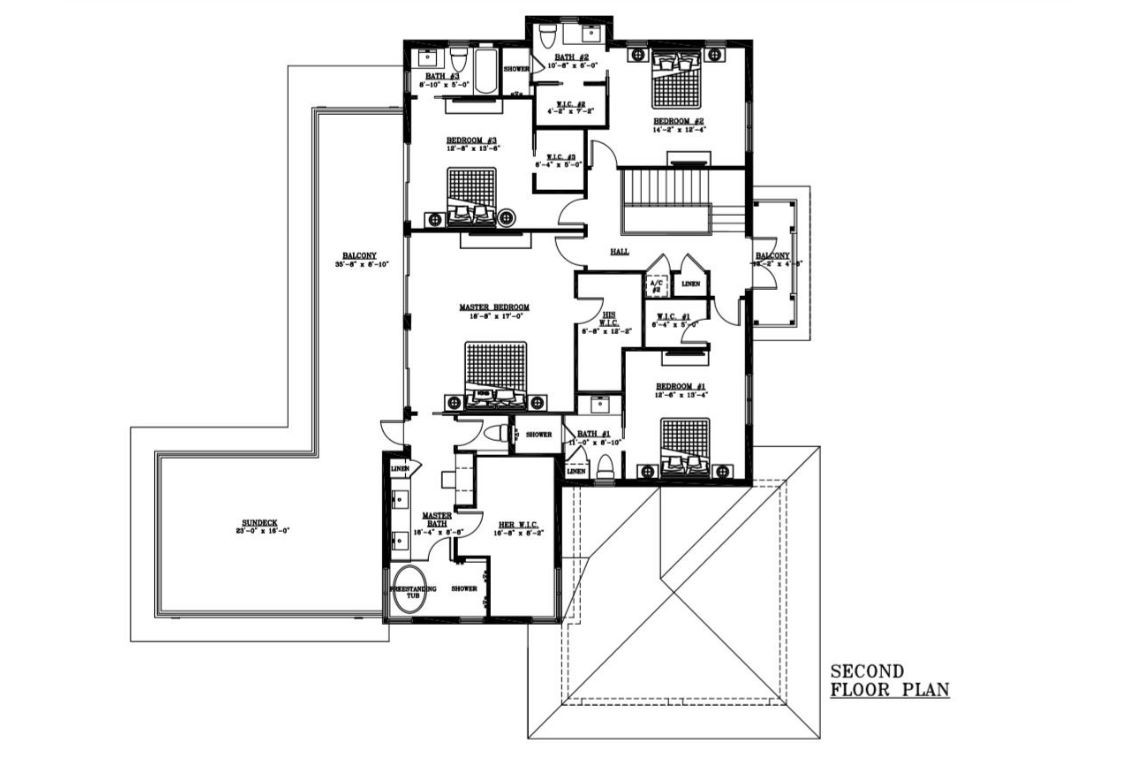
The first floor boasts a half bath, a laundry room with sink, a guest bedroom and bath (which also serves as a pool bath), and a den/office with its own private bath. Upstairs is the captivating and spacious master suite, again with floor to ceiling glass doors that access a peaceful and serene sundeck.
The additional 3 bedrooms offer en-suite baths.
Furthermore, this home comes complete with home automation, which enables you to easily control all your subsystems including lightning, shades, audio, video, HVAC, and more. Lastly, it includes a gas generator that will make your life worry free and secure.
Don’t miss the opportunity of purchasing this beautiful custom home! Please contact us for additional information.